HOLLY POND, Ala. – The Cullman County Board of Education (CCBOE) at a special called meeting on Monday morning approved a bid from Boatner Construction Company, Inc. of Rainbow City to construct a new Family and Consumer Sciences building at Holly Pond High School, replacing the school’s old freestanding Home Economics building, which has become unusable.
Boyett Construction Company, Inc. of Moulton also submitted a bid, but Boatner’s came in slightly lower. The projected total for the project is $1,095,000.
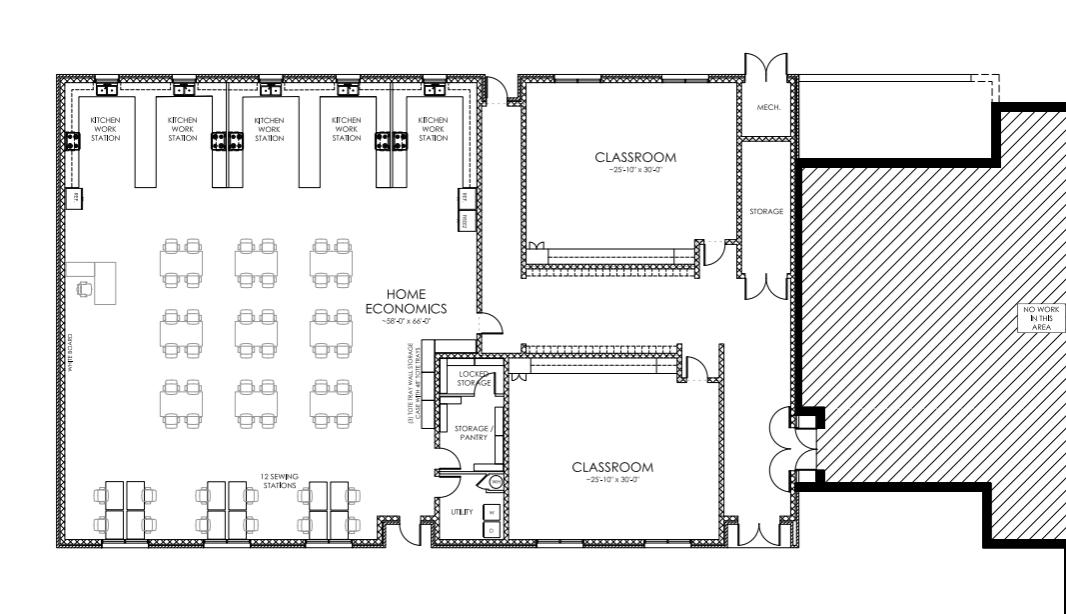
Plans for the new building feature a classroom with five kitchen work stations, 12 sewing stations, utility room and a storage room/pantry, as well as two additional classrooms and extra storage.
The project will tie up CCBOE’s capital fund for the year, as Superintendent Dr. Shane Barnette, who recently requested that a new 1-cent sales tax be placed on the March 2020 primary election ballot, explained:
“We’re excited to be able to do this, but this is an example that will take every bit of our capital money this year, and a little bit of General Fund money, to be able to do this addition. That’s why we need additional funding, so that we can do the repairs and additions that we need to do on every campus, and not have to plan them out for 10 or 12 years. We can start on them now.”
According to Barnette, a timetable for construction has not been set, but will be included in the contract being drawn up now.
Copyright 2019 Humble Roots, LLC. All Rights Reserved.






















