BERLIN, Ala. – Real estate firm Retail Specialists will hold a groundbreaking ceremony for a new subdivision near the town of Berlin Tuesday, June 30.
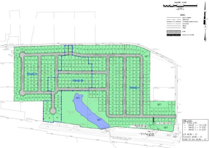
The new neighborhood, Kingfisher, will have 280 homes, according to the firm, which said the homes are estimated to sell in the $190,000 to $250,000 price range. Prominence Homes has been selected as the home builder for the development.
“We are thrilled to have this new development coming to Cullman County,” said Cullman County Commissioner Kerry Watson. “With the way our county is growing, this is something that has been needed for a long time. Our hope is this will serve as a catalyst for future development in our area.”
In a media release, Retail Specialists said, “Located at the intersection of U.S. Hwy. 278 E and County Road 1616, the Kingfisher subdivision will feature new streets and sidewalks. Community leaders feel that this new neighborhood will serve as a catalyst for more dining and shopping development in the area.”
“Cullman County is poised for growth over the next five years, so bringing affordable, quality housing to the market is another way we are able to assist the community with their growth,” said Robert Jolly, founder and CEO of Retail Specialists. “This is our second residential project in Cullman County and is a great example of how we can help in multiple facets of community development – from attracting new retailers, to transforming vacant commercial real estate space, and building new neighborhoods – our team is excited about all of the work happening in the county.”
“With the growth in Cullman County and its proximity to Huntsville and Birmingham, it’s the perfect time to break ground on a new neighborhood,” said Scott Underwood, chief operating officer for Prominence Homes. “Our team is excited to bring high-quality homes to this community.”
The Kingfisher neighborhood is being developed by Retail Specialists. Sain Engineering is handling the civil engineering, Meredith Environmental is the site contractor and Prominence Homes is constructing the new homes.
Copyright 2020 Humble Roots, LLC. All Rights Reserved.





















